Perinteikkäällä ja arvostetulla alueella Tampereen Kalevassa on myynnissä 117-neliöinen liiketila osoitteessa Takojankatu 18. Liiketila valmistuu hyvien yhteyksien varrelle Asunto Oy Kalevanrinteen Vanamon katutasoon talvella 2027.
Asunto Oy Kalevanrinteen Vanamo on rakenteilla suositulle alueelle aivan Kalevanrinteen kupeeseen. Taloyhtiön kaksi asuinkerrostaloa ovat osa Takojankadun ja Kalevanharjun puistikon väliin muodostuvaa asuinkorttelia. Rakennukset ovat energiatehokkuusluokaltaan A-luokkaa, ja niissä käytetään uusinta teknologiaa. Korttelin pihakannen alla sijaitsee pysäköintihalli, johon on suora kulku hissillä porrashuoneesta.
Perustiedot
Tyyppi: liiketila
Sopimustyyppi: myydään
Osoite: Takojankatu 18, 33540 Tampere
Kaupunginosa: Kalevanrinne
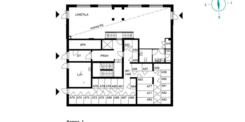
Käyttötarkoitus: pääkäyttötarkoitusta häiritsemätön myymälä-, toimisto-, harrastus- tai työtila
Lisätiedot
Saatavilla: luovutettavissa kohteen valmistuessa talvella 2027
Huoneiden määrä: 1
Liiketilan koko: 117 m²
Kerros: 1/8
Liiketilaan on esteetön sisäänkäynti rakennuksen molemmista päistä, ja tila on jaettavissa kahteen osaan. Huonekorkeus on noin 4,2 metriä. Näyteikkunat ovat Takojankadulle päin. Liiketilassa on inva-wc, minikeittiö ja siivoustila. Lisäksi minikeittiövaraus on myös liiketilan toisessa päässä, jos tila esimerkiksi jaetaan kahteen osaan.
Liiketilalle on varattu ostettavaksi kaksi autopaikkaa Koy Tampereen Kalevanrinteen Parkista. Myös varastotilaa on mahdollista ostaa. Pysäköintihallista on yhteys sisäkautta varastotiloihin ja liiketilaan.
Hintatiedot
Myyntihinta: 151 168,00 €
Velkaosuus: 223 232,00 €
Velaton hinta: 374 400,00 €
Hoitovastike: 795,60 €
 
         
         
         
         
         
         
        