Tietoja asunnosta

Etelänpuoleinen kaksio, jossa on hyvät säilytystilat ja avara olohuone. Toisen kerroksen asunnossa on kaksi liukuovellista ranskalaista parveketta päiväauringon suuntaan. Asumismukavuuden takaavat lattialämmitys ja -viilennys sekä huoneistokohtainen ilmanvaihto.

Näyttävä 10-kerroksinen Hermione nousee omalle tontille aivan Pirkkalan keskustaan, silti luonnonläheisten liikunta- ja ulkoilumahdollisuuksien äärelle kahden järven läheisyyteen.

Hermionessa on helppo viihtyä. A-energialuokan moderneissa kodeissa on tilavat ja suurten ikkunoiden ansiosta valoisat huoneet.

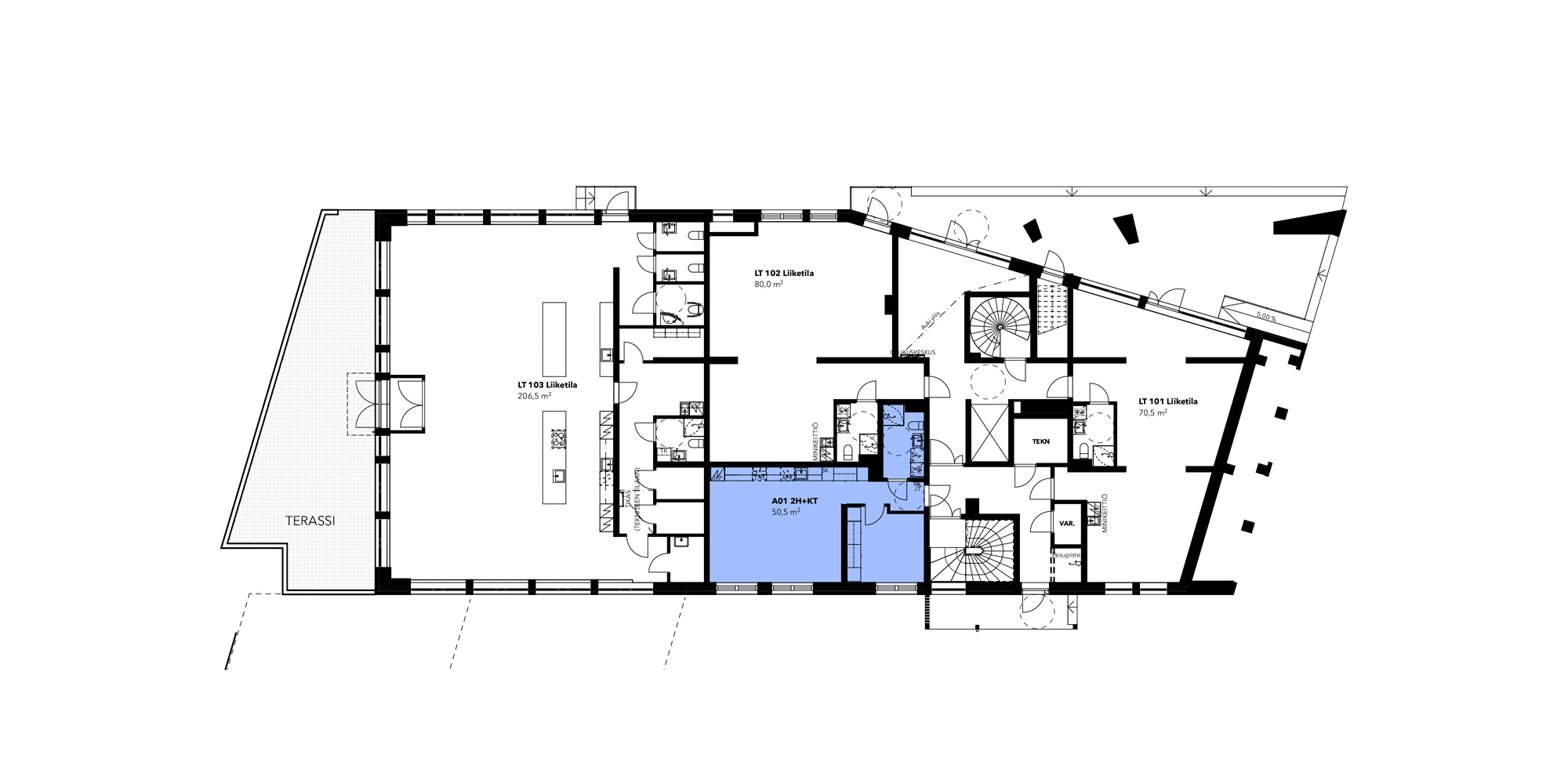
Pysäköintipaikat sijaitsevat maanalaisessa pysäköintihallissa, josta on kellarikerroksen kautta suojaisa käynti taloon. Kellarikerroksesta löytyy kätevä pesutila polkupyörille ja lastenvaunuille sekä taloyhtiön saunaosasto ja pyykkien kuivaushuone. Hermionen ensimmäiseen kerrokseen tulee kolme liiketilaa.

Suupantien ja Suupankujan kulmaan kohoavan Hermionen pihasta tulee vehreä ja viihtyisä. Pihan maanvaraiselle osalle istutetaan puita ja pensaita, ja autohallin katto toteutetaan viherkattona.

Parveke
Ei
Sauna
Ei
Energialuokka
A

Hintatiedot

Myyntihinta
133 458,00 €
i Maksettava kauppahinta ennen kohteen valmistumista
Yhtiölainaosuus
134 442,00 €
i Asunnolle kohdistuva osuus taloyhtiölainasta
Velaton hinta
267 900,00 €
i Myyntihinta + yhtiölainaosuus
Tontin omistus
Oma
i Tontin hinta on mukana asunnon hinnassa, eikä sinun tarvitse maksaa tontista mitään erillistä kuukausimaksua. Asunto-osakeyhtiö omistaa tontin.
 
 
Hoitovastike
196,95 €
i Kuukausittain maksettava hoitovastike
Pääomavastike (sis. korko & lyhennys)
925,54 €
i Kuukausittainen pääomavastike, kun taloyhtiölainasta maksetaan lyhennys ja korot
Pääomavastike (korko)
458,92 €
i Kuukausittainen pääomavastike silloin, kun taloyhtiölainasta maksetaan vain korkoja
Kaikki vastikkeet yhteensä
1 122,49 €
Ennakkovesimaksu/hlö
25,00 €
Kaapeli-TV-/Laajakaistamaksu
8,00 €
 
 
Kuukausittaiset vastikkeet ovat taloussuunnitelman mukaisia arvioita kohteen hallinnonluovutuskokoukseen asti. Sen jälkeen vastikkeet ovat yhtiökokouksen päätöksen mukaisia.
 
 
Taloyhtiölainasta on vastuussa jokainen osakas. Jos lainaa koskevia pääomavastikkeita ei saada joidenkin asuntojen osalta muutoin perittyä, maksuvelvollisuus voi langeta viime kädessä muille osakkaille.

Kaikki kuvat

Asunnot ja hinnat

Nro Huoneistotyyppi Tila Kerros Asuinpinta-ala Myyntihinta Velaton hinta
A1 2h+kt Myynnissä 1 / 10 50,50 m² 124 161,00 € 249 000,00 € Lue lisää
A10 1h+kt Myynnissä 3 / 10 30,50 m² 91 235,00 € 182 900,00 € Lue lisää
A11 2h+kt Myynnissä 3 / 10 45,50 m² 130 650,00 € 261 600,00 € Lue lisää
A12 2h+kt Myynnissä 4 / 10 50,50 m² 143 955,00 € 288 000,00 € Lue lisää
A13 1h+kt Myynnissä 4 / 10 34,50 m² 101 959,00 € 204 100,00 € Lue lisää
A14 3h+kt+s Myynnissä 4 / 10 73,00 m² 204 718,00 € 409 000,00 € Lue lisää
A15 2h+kt+s Myynnissä 4 / 10 58,50 m² 170 565,00 € 340 800,00 € Lue lisää
A16 1h+kt Myynnissä 4 / 10 30,50 m² 93 089,00 € 186 500,00 € Lue lisää
A17 2h+kt Myynnissä 4 / 10 45,50 m² 133 931,00 € 267 500,00 € Lue lisää
A18 2h+kt Myynnissä 5 / 10 50,50 m² 149 217,00 € 298 500,00 € Lue lisää
A19 1h+kt Myynnissä 5 / 10 34,50 m² 104 940,00 € 209 700,00 € Lue lisää
A20 3h+kt+s Myynnissä 5 / 10 73,00 m² 209 480,00 € 419 000,00 € Lue lisää
A21 2h+kt+s Myynnissä 5 / 10 58,50 m² 171 946,00 € 344 800,00 € Lue lisää
A22 1h+kt Myynnissä 5 / 10 30,50 m² 94 743,00 € 189 900,00 € Lue lisää
A23 2h+kt Myynnissä 5 / 10 45,50 m² 135 158,00 € 269 600,00 € Lue lisää
A24 2h+kt Myynnissä 6 / 10 50,50 m² 154 479,00 € 309 000,00 € Lue lisää
A25 1h+kt Myynnissä 6 / 10 34,50 m² 107 448,00 € 215 700,00 € Lue lisää
A26 3h+kt+s Myynnissä 6 / 10 73,00 m² 214 242,00 € 429 000,00 € Lue lisää
A27 2h+kt+s Myynnissä 6 / 10 58,50 m² 176 781,00 € 354 000,00 € Lue lisää
A28 1h+kt Myynnissä 6 / 10 30,50 m² 97 124,00 € 194 900,00 € Lue lisää
Lue lisää

Kiinnostuitko?

Ota yhteyttä!

Peab asuntomyynti

Puhelin: +358 40 801 9900
Sähköposti: asuntomyynti@peab.fi

Liitteet ja linkit

Muita kohteita

Evästeet

Sivusto sisältää evästeitä.

Evästeet ovat pieniä tekstitiedostoja, joita verkkosivusto tallentaa luvan kanssa kävijän tietokoneelle. Evästeitä käytetään normaalisti sivuston käyttäjäkokemuksen parantamiseen sekä sivuston mukauttamiseen käyttäjän toivomusten ja valintojen mukaan.

Sähköisen viestinnän tietosuojalain mukaan kaikkien verkkosivustoilla vierailevien käyttäjien pitää saada tietoa siitä, että verkkosivusto käyttää evästeitä sekä evästeiden käytön tarkoituksesta. Käyttäjien pitää myös hyväksyä evästeiden käyttö.

Käytämme sivustollamme evästeitä.

Käytämme sivustollamme evästeitä, jotta sivusto toimisi parhaalla mahdollisella tavalla sinulle sen vierailijana. On olemassa kolmen tyyppisiä evästeitä. Kaikkia evästeitä käytetään sivustollamme.

  • Pysyvät evästeet:

Tallennetaan tietokoneellesi tietyksi ajaksi.  Tätä evästettä käytetään esimerkiksi sivuston käyttäjäkokemuksen parantamiseksi.

  • Istuntoeväste:

Tallennetaan tietokoneellesi siksi aikaa kun vierailet sivustollamme. Istuntoevästeet poistuvat kun suljet internetselaimen.

  • Tilastoevästeet

Nämä evästeet keräävät tietoa montako vierailijaa sivustollamme on. Emme kerää henkilötietoja.

Evästeistä kieltäytyminen

Mikäli et halua hyväksyä evästeitä, voit asettaa tietokoneesi automaattisesti kieltäytymään evästeistä tai niin että saat ilmoituksen jos sivustolla käytetään evästeitä. Internetselaimen kautta voi myös poistaa aiemmin tallennettuja evästeitä. Ohjeet tähän löytyy selaimesta. Mikäli et hyväksy evästeiden käyttöä, saattaa osa sivustosta toimia huonosti.

Lue evästeselosteemme.

Lue lisää evästeistä Viestintäviraston sivuilta.