Yhteydenottolomakkeemme ei tällä hetkellä toimi. Ota yhteyttä sähköpostitse: asuntomyynti@peab.fi tai puhelimitse: +358 40 801 9900. Pahoittelemme häiriötä!

Tietoja asunnosta

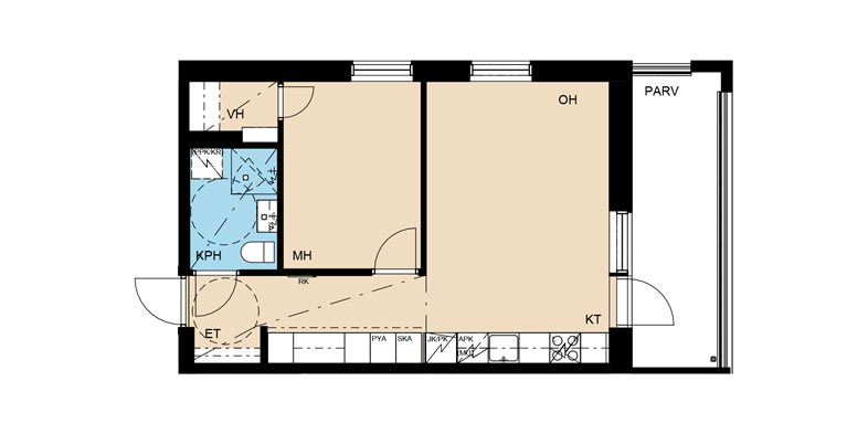
Rakennuksen kulmalta löytyvä kaksio, jonka parhaisiin puoliin lukeutuvat reilut säilytystilat. Vaatehuoneeseen mahtuu mukavasti asusteita ja kenkiä. Makuuhuoneeseen voi sijoittaa sängyn lisäksi työpöydän. Reilunkokoinen parveke avautuu aamuauringon suuntaan.

Tyylikkäitä, moderneja asuntoja perinteikkäällä alueella

Asunto Oy Kalevanrinteen Vanamo koostuu kahdesta 8- ja 10-kerroksisesta talosta, joihin valmistuu yhteensä 95 asuntoa. Laadukkaasti varustelluissa A-energialuokan asunnoissa on vesikiertoinen lattialämmitys ja -viilennys, parkettilattiat sekä huoneistokohtainen ilmanvaihto. Asunnot ovat tilaratkaisuiltaan avaria ja valoisia. Useimmissa kodeissa on kahteen ilmansuuntaan avautuvat isot ikkunat, ja kaikissa on tilava, lasitettu parveke.

Asukkailla on käytössään monipuoliset yhteistilat: varasto- ja pyöräsäilytystilat, polkupyörien huoltoon ja pesuun tarkoitetut tilat, verstas- ja harrastustilaa sekä vilvoitteluparvekkeella varustettu yhteissauna.

Taloyhtiö on osa Takojankadun ja Kalevanharjun puistikon väliin muodostuvaa uutta asuinkorttelia. Suojaisalla sisäpihalla on omat alueet oleskelulle ja lasten leikille. Piha-alueen kulkureitit ovat esteettömiä ja turvallisia, sillä autopaikat on sijoitettu pihakannen alle pysäköintihalliin, johon pääsee hissillä suoraan asuinkerroksista. Autopaikat myydään erillisinä osakkeina, ja niihin voi tilata sähköautojen latausaseman.

Kalevanrinteen Vanamo rakennetaan perinteikkäälle ja arvostetulle alueelle Kalevan kaupunginosaan, aivan Kalevanrinteen kupeeseen. Metsään rajautuvasta suojaisasta korttelista on lyhyt matka päiväkoteihin ja kouluihin, yliopistolle, ammattikorkeakoululle ja TAYSiin. Kalevan kauppapalvelut ja Tampereen uintikeskus ovat niin ikään kävelymatkan päässä.

Peab rakentaa Kunnon koteja

Peab-konserni on Pohjoismaiden suurin rakennusyhtiö. Rakennamme itse omat kohteemme yli 60 vuoden kokemuksella ja kerralla kuntoon. Olemme vakavarainen rakentaja ja alan edelläkävijä kosteudenhallinnassa, joka on meillä yksi laadukkaan rakentamisen kulmakivistä. Rakentamisen Laatu RALA ry on myöntänyt Peabille ensimmäisenä Suomessa kosteudenhallintasertifikaatin. Se kertoo, että huomioimme kosteudenhallinnan systemaattisesti rakennusprojektiemme kaikissa vaiheissa suunnittelusta lähtien.

Parveke
Kyllä
Sauna
Ei
Energialuokka
A

Hintatiedot

Myyntihinta
114 264,00 €
i Maksettava kauppahinta ennen kohteen valmistumista
Yhtiölainaosuus
167 936,00 €
i Asunnolle kohdistuva osuus taloyhtiölainasta
Velaton hinta
282 200,00 €
i Myyntihinta + yhtiölainaosuus
Tontin omistus
Vuokra
i Vuokratontilla sijaitsevassa asunnossa maksat tontista vuokraa. Asunnon hinta on yleensä pienempi, mutta tontin vuokra nostaa kuukausittaista hoitovastiketta.
 
 
Hoitovastike
306,00 €
i Kuukausittain maksettava hoitovastike
Pääomavastike (sis. korko & lyhennys)
1 036,48 €
i Kuukausittainen pääomavastike, kun taloyhtiölainasta maksetaan lyhennys ja korot
Pääomavastike (korko)
453,46 €
i Kuukausittainen pääomavastike silloin, kun taloyhtiölainasta maksetaan vain korkoja
Kaikki vastikkeet yhteensä
1 342,48 €
Lyhennyksen arvioitu alkaminen
2028-01
i Tämän jälkeen maksat pääomavastiketta, joka sisältää koron & lyhennyksen
Ennakkovesimaksu/hlö
25,00 €
Kaapeli-TV-/Laajakaistamaksu
3,90 €
 
 
Kuukausittaiset vastikkeet ovat taloussuunnitelman mukaisia arvioita kohteen hallinnonluovutuskokoukseen asti. Sen jälkeen vastikkeet ovat yhtiökokouksen päätöksen mukaisia.
 
 
Taloyhtiölainasta on vastuussa jokainen osakas. Jos lainaa koskevia pääomavastikkeita ei saada joidenkin asuntojen osalta muutoin perittyä, maksuvelvollisuus voi langeta viime kädessä muille osakkaille.
 
 
Tietoa vuokratontin maanvuokrasopimuksesta saat Peabin asuntomyynnistä.

Kaikki kuvat

Asunnot ja hinnat

Nro Huoneistotyyppi Tila Kerros Asuinpinta-ala Myyntihinta Velaton hinta
A1 2h+kt+työhuone Myynnissä 1 / 10 58,00 m² 138 600,00 € 343 400,00 € Lue lisää
A10 3h+k+s Myynnissä 2 / 10 76,00 m² 197 888,00 € 492 800,00 € Lue lisää
A11 1h+kt Myynnissä 3 / 10 32,00 m² 78 664,00 € 195 400,00 € Lue lisää
A12 2-3h+kt Myynnissä 3 / 10 58,00 m² 140 152,00 € 347 000,00 € Lue lisää
A13 2h+kt Myynnissä 3 / 10 51,00 m² 136 096,00 € 336 800,00 € Lue lisää
A14 2h+kt Myynnissä 3 / 10 42,50 m² 104 148,00 € 255 700,00 € Lue lisää
A15 2-3h+k Myynnissä 3 / 10 64,00 m² 175 852,00 € 433 900,00 € Lue lisää
A16 3h+k+s Myynnissä 3 / 10 76,00 m² 201 040,00 € 498 000,00 € Lue lisää
A17 1h+kt Myynnissä 4 / 10 32,00 m² 78 664,00 € 195 400,00 € Lue lisää
A18 2-3h+kt Myynnissä 4 / 10 58,50 m² 156 124,00 € 385 500,00 € Lue lisää
A19 2h+kt Myynnissä 4 / 10 51,00 m² 136 096,00 € 336 800,00 € Lue lisää
A2 2h+kt Myynnissä 1 / 10 51,00 m² 134 744,00 € 333 400,00 € Lue lisää
A20 2h+kt Myynnissä 4 / 10 43,00 m² 105 852,00 € 261 500,00 € Lue lisää
A21 2-3h+k Myynnissä 4 / 10 64,50 m² 182 012,00 € 450 300,00 € Lue lisää
A22 3h+k+s Myynnissä 4 / 10 76,00 m² 201 040,00 € 498 000,00 € Lue lisää
A23 1h+kt Myynnissä 5 / 10 32,00 m² 78 616,00 € 197 400,00 € Lue lisää
A24 2-3h+kt Myynnissä 5 / 10 58,50 m² 157 976,00 € 389 400,00 € Lue lisää
A25 5h+kt+s Myynnissä 5 / 10 95,50 m² 263 232,00 € 654 400,00 € Lue lisää
A26 2-3h+k Myynnissä 5 / 10 64,50 m² 182 516,00 € 454 900,00 € Lue lisää
A27 3h+k+s Myynnissä 5 / 10 76,00 m² 202 144,00 € 503 200,00 € Lue lisää
Lue lisää

Kiinnostuitko?

Ota yhteyttä!

Peab asuntomyynti

Puhelin: +358 40 801 9900
Sähköposti: asuntomyynti@peab.fi

Muita kohteita

Evästeet

Sivusto sisältää evästeitä.

Evästeet ovat pieniä tekstitiedostoja, joita verkkosivusto tallentaa luvan kanssa kävijän tietokoneelle. Evästeitä käytetään normaalisti sivuston käyttäjäkokemuksen parantamiseen sekä sivuston mukauttamiseen käyttäjän toivomusten ja valintojen mukaan.

Sähköisen viestinnän tietosuojalain mukaan kaikkien verkkosivustoilla vierailevien käyttäjien pitää saada tietoa siitä, että verkkosivusto käyttää evästeitä sekä evästeiden käytön tarkoituksesta. Käyttäjien pitää myös hyväksyä evästeiden käyttö.

Käytämme sivustollamme evästeitä.

Käytämme sivustollamme evästeitä, jotta sivusto toimisi parhaalla mahdollisella tavalla sinulle sen vierailijana. On olemassa kolmen tyyppisiä evästeitä. Kaikkia evästeitä käytetään sivustollamme.

  • Pysyvät evästeet:

Tallennetaan tietokoneellesi tietyksi ajaksi.  Tätä evästettä käytetään esimerkiksi sivuston käyttäjäkokemuksen parantamiseksi.

  • Istuntoeväste:

Tallennetaan tietokoneellesi siksi aikaa kun vierailet sivustollamme. Istuntoevästeet poistuvat kun suljet internetselaimen.

  • Tilastoevästeet

Nämä evästeet keräävät tietoa montako vierailijaa sivustollamme on. Emme kerää henkilötietoja.

Evästeistä kieltäytyminen

Mikäli et halua hyväksyä evästeitä, voit asettaa tietokoneesi automaattisesti kieltäytymään evästeistä tai niin että saat ilmoituksen jos sivustolla käytetään evästeitä. Internetselaimen kautta voi myös poistaa aiemmin tallennettuja evästeitä. Ohjeet tähän löytyy selaimesta. Mikäli et hyväksy evästeiden käyttöä, saattaa osa sivustosta toimia huonosti.

Lue evästeselosteemme.

Lue lisää evästeistä Viestintäviraston sivuilta.