Tietoja asunnosta

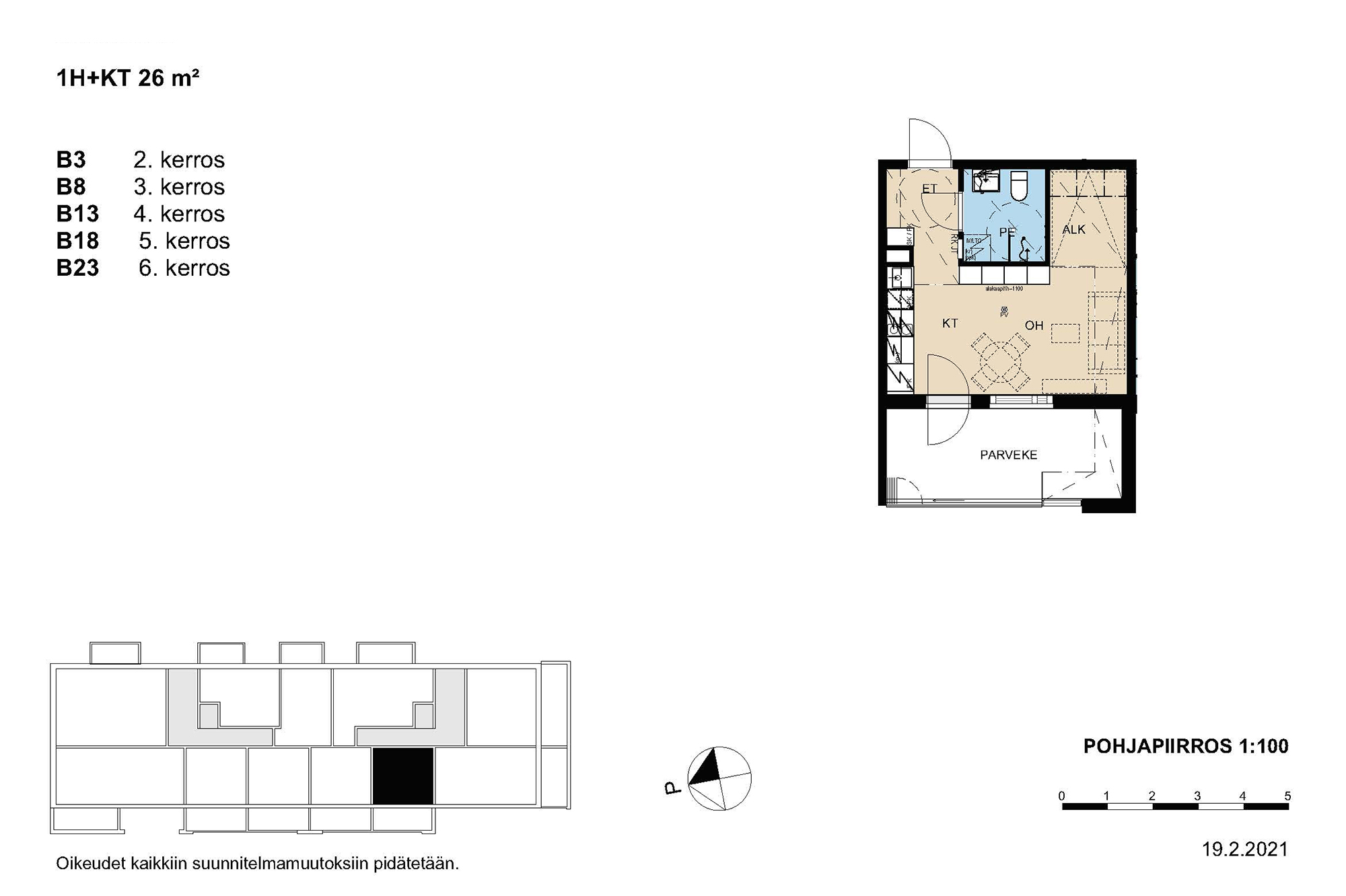
Todella toimiva ja viehättävä yksiö! Huoneiston levyinen iso lasitettu parveke monipuolistaa oleskelutiloja kesäkaudella. Parisängyn vetävä alkovi jättää tilaa muille kalusteille. Säilytystilaa on järjestetty alkovin yläkaappeihin ja olohuoneen mataliin kaappeihin.

As Oy Oulun Sepänpiha on valmistunut yhtiön omistamalle tontille Limingantullin Mestarikortteliin vain parin kilometrin etäisyydelle Oulun kauppatorista. Kuusikerroksinen Sepänpiha on kunnolla rakennettu ja hyvin varustettu moderni talo. Julkisivun tiilet muurataan paikan päällä ja lattialämmitys jakaa lämmön energiatehokkaasti sekä miellyttävästi.

Huoletonta ja helppoa – sellaista on asuminen modernissa Sepänpihassa. Hissi vie, bussi tuo ja huoltoyhtiö tekee lumityöt. Omalle autolle voi hankkia paikan maanalaisesta autohallista, josta pääsee hissillä kotikerrokseen. Pohjaratkaisuissa on ajateltu jokapäiväistä toimivuutta. Jokaiseen asuntoon kuuluu oleskelutiloja monipuolistava lasitettu parveke.

Limingantullista on kehittynyt Oulun uusi nuorekas kasvukeskus aivan ydinkeskustan viereen. Aivan läheltä Sepänpihaa löytyy erikoistavarakauppoja, ruokapaikkoja ja kahviloita. Lapsiperheille tärkeät päiväkoti ja koulu palvelevat noin kilometrin etäisyydellä. Liikuntaa harrastavalle Limingantulli on suorastaan unelmasijainti.

Katso videoesittely taloyhtiön yleisistä alueista ja yhteistiloista: https://youtu.be/2Funi1ooig4

Peab rakentaa Kunnon koteja

Peab-konserni on Pohjoismaiden suurin rakennusyhtiö. Rakennamme itse omat kohteemme yli 60 vuoden kokemuksella ja kerralla kuntoon. Olemme vakavarainen rakentaja ja alan edelläkävijä kosteudenhallinnassa, joka on meillä yksi laadukkaan rakentamisen kulmakivistä. Rakentamisen Laatu RALA ry on myöntänyt Peabille ensimmäisenä Suomessa kosteudenhallintasertifikaatin. Se kertoo, että huomioimme kosteudenhallinnan systemaattisesti rakennusprojektiemme kaikissa vaiheissa suunnittelusta lähtien.

Parveke
Kyllä
Sauna
Ei
Energialuokka
A

Hintatiedot

Myyntihinta
46 930,00 €
i Maksettava kauppahinta ennen kohteen valmistumista
Yhtiölainaosuus
108 570,00 €
i Asunnolle kohdistuva osuus taloyhtiölainasta
Velaton hinta
155 500,00 €
i Myyntihinta + yhtiölainaosuus
Tontin omistus
Oma
i Tontin hinta on mukana asunnon hinnassa, eikä sinun tarvitse maksaa tontista mitään erillistä kuukausimaksua. Asunto-osakeyhtiö omistaa tontin.
 
 
Hoitovastike
85,80 €
i Kuukausittain maksettava hoitovastike
Pääomavastike (sis. korko & lyhennys)
757,17 €
i Kuukausittainen pääomavastike, kun taloyhtiölainasta maksetaan lyhennys ja korot
Pääomavastike (korko)
282,00 €
i Kuukausittainen pääomavastike silloin, kun taloyhtiölainasta maksetaan vain korkoja
Kaikki vastikkeet yhteensä
842,97 €
Lyhennyksen arvioitu alkaminen
2025-09
i Tämän jälkeen maksat pääomavastiketta, joka sisältää koron & lyhennyksen
Ennakkovesimaksu/hlö
20,00 €
Kaapeli-TV-/Laajakaistamaksu
1,70 €
 
 
Kuukausittaiset vastikkeet ovat taloussuunnitelman mukaisia arvioita kohteen hallinnonluovutuskokoukseen asti. Sen jälkeen vastikkeet ovat yhtiökokouksen päätöksen mukaisia.
 
 
Taloyhtiölainasta on vastuussa jokainen osakas. Jos lainaa koskevia pääomavastikkeita ei saada joidenkin asuntojen osalta muutoin perittyä, maksuvelvollisuus voi langeta viime kädessä muille osakkaille.

Kaikki kuvat

Asunnot ja hinnat

Nro Huoneistotyyppi Tila Kerros Asuinpinta-ala Myyntihinta Velaton hinta
A20 1h+kt Myynnissä 5 / 6 30,50 m² 48 610,00 € 161 800,00 € Lue lisää
A26 1h+kt Myynnissä 6 / 6 30,50 m² 51 490,00 € 169 300,00 € Lue lisää
B24 1h+kt Myynnissä 6 / 6 26,00 m² 46 930,00 € 155 500,00 € Lue lisää
Lue lisää

Kiinnostuitko?

Ota yhteyttä!

Asuntomyynti Oulu

Puhelin: +358 40 6176 040
Sähköposti: asuntomyynti@peab.fi

Muita kohteita

B24

Valoisa ja persoonallinen pikkukoti! Huoneiston levyinen iso lasitettu parveke monipuolistaa oleskelutiloja kesäkaudella. Parisängyn vetävä alkovi jättää tilaa muille kalusteille. Säilytystilaa on järjestetty alkovin yläkaappeihin ja olohuoneen mataliin kaappeihin. Katso videoesittely asunnosta: https://youtu.be/4utaEWg1Y2Q As Oy Oulun...

A26

Kiva yksiö, jossa on tilatehokkaassa muodossa kaikki sujuvaan asumiseen tarvittava. Eteinen on selkeä, kylpyhuoneeseen mahtuu pesutorni ja sängylle jää rauhallinen paikka alkoviin. Parvekkeelle on ihana viettää kesäistä aamiaishetkeä aamuauringon helliessä. Katso videoesittely asunnosta: https://youtu.be/VepDJtG4Csg As Oy Oulun Sepänpi...

A20

Kiva yksiö, jossa on tilatehokkaassa muodossa kaikki sujuvaan asumiseen tarvittava. Eteinen on selkeä, kylpyhuoneeseen mahtuu pesutorni ja sängylle jää rauhallinen paikka alkoviin. Parvekkeelle on ihana viettää kesäistä aamiaishetkeä aamuauringon helliessä. Katso videoesittely asunnosta: https://youtu.be/8NqlCyRAK7Q As Oy Oulun Sepänpi...

Evästeet

Sivusto sisältää evästeitä.

Evästeet ovat pieniä tekstitiedostoja, joita verkkosivusto tallentaa luvan kanssa kävijän tietokoneelle. Evästeitä käytetään normaalisti sivuston käyttäjäkokemuksen parantamiseen sekä sivuston mukauttamiseen käyttäjän toivomusten ja valintojen mukaan.

Sähköisen viestinnän tietosuojalain mukaan kaikkien verkkosivustoilla vierailevien käyttäjien pitää saada tietoa siitä, että verkkosivusto käyttää evästeitä sekä evästeiden käytön tarkoituksesta. Käyttäjien pitää myös hyväksyä evästeiden käyttö.

Käytämme sivustollamme evästeitä.

Käytämme sivustollamme evästeitä, jotta sivusto toimisi parhaalla mahdollisella tavalla sinulle sen vierailijana. On olemassa kolmen tyyppisiä evästeitä. Kaikkia evästeitä käytetään sivustollamme.

  • Pysyvät evästeet:

Tallennetaan tietokoneellesi tietyksi ajaksi.  Tätä evästettä käytetään esimerkiksi sivuston käyttäjäkokemuksen parantamiseksi.

  • Istuntoeväste:

Tallennetaan tietokoneellesi siksi aikaa kun vierailet sivustollamme. Istuntoevästeet poistuvat kun suljet internetselaimen.

  • Tilastoevästeet

Nämä evästeet keräävät tietoa montako vierailijaa sivustollamme on. Emme kerää henkilötietoja.

Evästeistä kieltäytyminen

Mikäli et halua hyväksyä evästeitä, voit asettaa tietokoneesi automaattisesti kieltäytymään evästeistä tai niin että saat ilmoituksen jos sivustolla käytetään evästeitä. Internetselaimen kautta voi myös poistaa aiemmin tallennettuja evästeitä. Ohjeet tähän löytyy selaimesta. Mikäli et hyväksy evästeiden käyttöä, saattaa osa sivustosta toimia huonosti.

Lue evästeselosteemme.

Lue lisää evästeistä Viestintäviraston sivuilta.