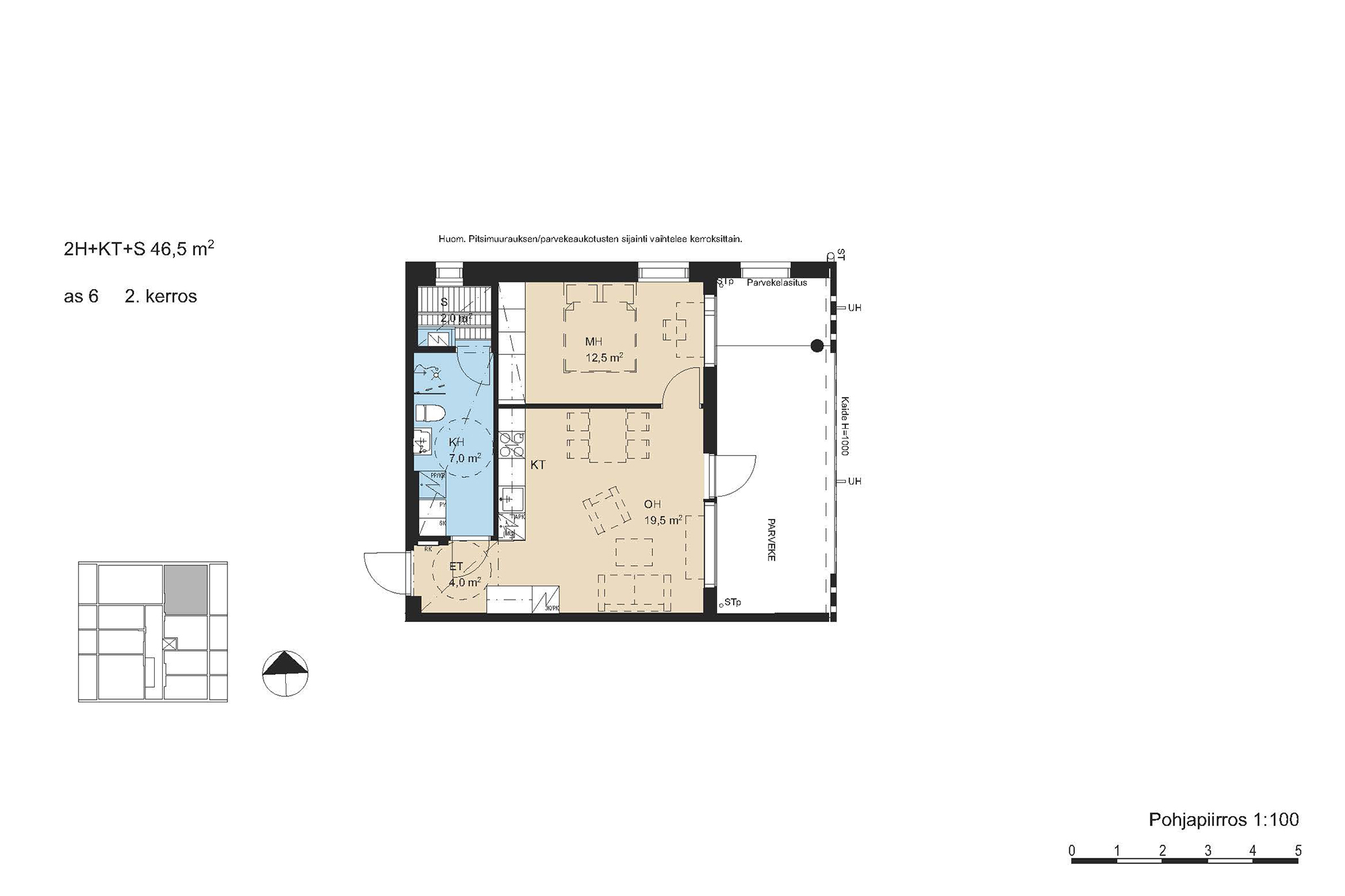
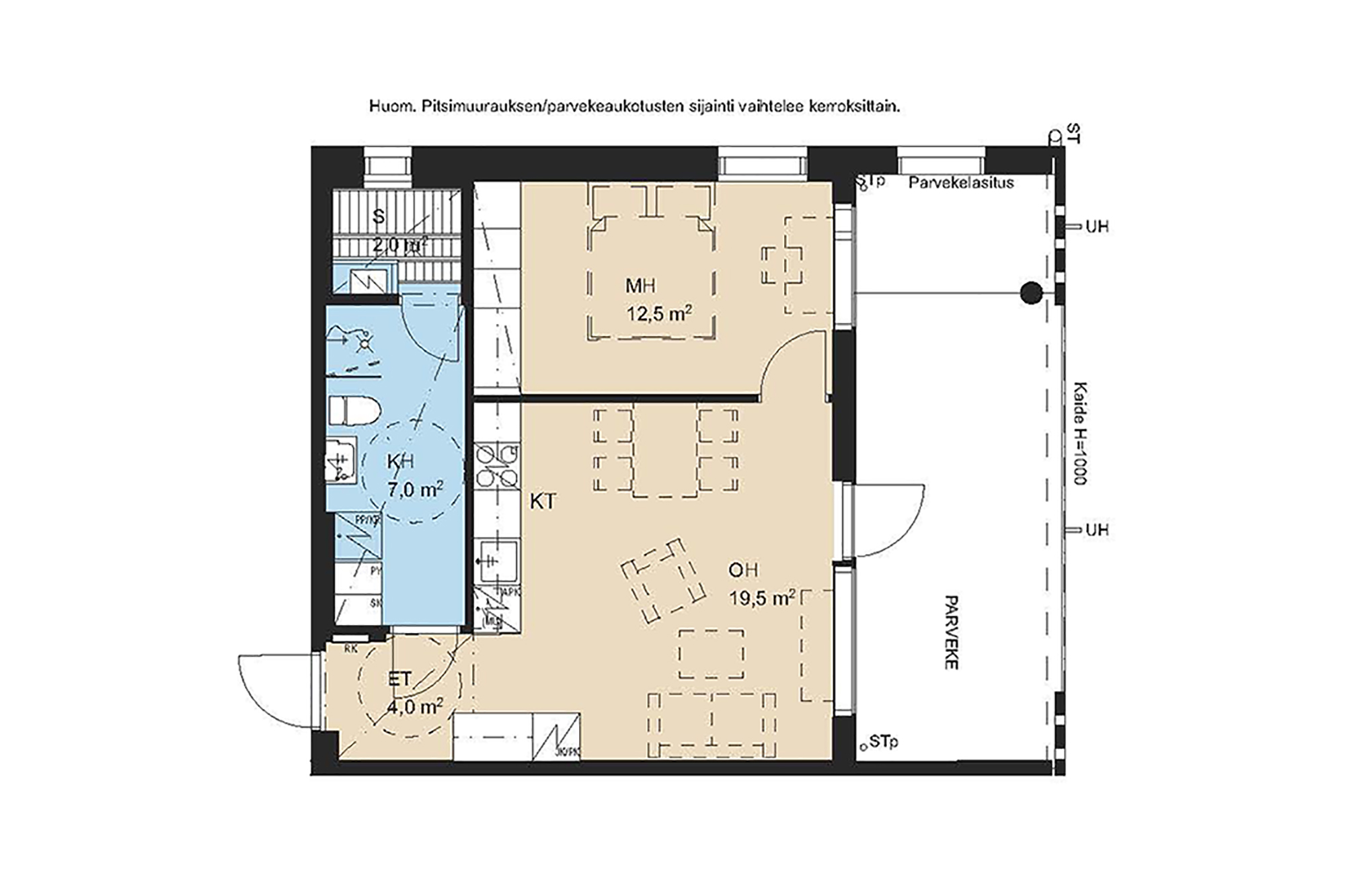
Tietoja asunnosta

Todella toimiva kaksio huikealla parvekkeella aamuauringon suuntaan. Makuuhuone on reilunkokoinen, sinne saa sisustettua vaikkapa etätyöpisteen. Kylpyhuoneessa on mukavasti tilaa ja helmenä saunassa ikkuna järvinäkymin.

Katso videoesittely asunnosta: https://youtu.be/14m8FeUMWcE

Jyväsjärven Kimalluksessa asut järven rannalla kaupungissa. Veden äärellä kiertävälle rantaraitille pääset kotiovelta parissa minuutissa. Jyväsjärven yhtiöiden asukkaiden käytössä on oma rantasauna, jonka yhteydessä on myös tupakeittiö ja terassi. Noin kilometrin etäisyydelle sijoittuva Kuokkalan keskus tarjoaa peruspalvelut arkipäivään. Sillan ylittämällä lähestyt jo Jyväskylän ydinkeskustaa. 

Kimallus on rakennettu kunnolla ja varustettu nykyaikaisesti. Esimerkiksi kotien ilmanvaihtoa voi tehostaa huoneistokohtaisesti ja lämmönjakomuotona on energiatehokas lattialämmitys. Taloyhtiön huoneistolaajakaista ja kaapeli-tv-liittymä varmistavat, että yhteydet toimivat – olipa kyse etätyöskentelystä tai vapaa-ajan vietosta. Huoneistojen pintamateriaalit ovat laadukkaita, esimerkiksi asuinhuoneiden lattiat ovat parkettia. Keittiöt on koneistettu tasokkaasti kalusteuunein ja induktiotasoin.

Autopaikat on varustettu lämmityspisteellä, joka on osakkeenomistajan toimesta muutettavissa hitaaksi sähköauton latauspisteeksi sähkön erillismittauksella.

Katso videoesittely taloyhtiön yleisistä alueista ja yhteistiloista: https://youtu.be/QW0nEtIns1M?si=Y81Gcd6m01yNt-8Y 

Peab rakentaa Kunnon koteja

Peab-konserni on Pohjoismaiden suurin rakennusyhtiö. Rakennamme itse omat kohteemme yli 60 vuoden kokemuksella ja kerralla kuntoon. Olemme vakavarainen rakentaja ja alan edelläkävijä kosteudenhallinnassa, joka on meillä yksi laadukkaan rakentamisen kulmakivistä. Rakentamisen Laatu RALA ry on myöntänyt Peabille ensimmäisenä Suomessa kosteudenhallintasertifikaatin. Se kertoo, että huomioimme kosteudenhallinnan systemaattisesti rakennusprojektiemme kaikissa vaiheissa suunnittelusta lähtien.

Parveke
Kyllä
Sauna
Kyllä
Energialuokka
B

Hintatiedot

Myyntihinta
59 614,00 €
i Maksettava kauppahinta ennen kohteen valmistumista
Yhtiölainaosuus
160 286,00 €
i Asunnolle kohdistuva osuus taloyhtiölainasta
Velaton hinta
219 900,00 €
i Myyntihinta + yhtiölainaosuus
Tontin omistus
Oma
i Tontin hinta on mukana asunnon hinnassa, eikä sinun tarvitse maksaa tontista mitään erillistä kuukausimaksua. Asunto-osakeyhtiö omistaa tontin.
 
 
Hoitovastike
156,71 €
i Kuukausittain maksettava hoitovastike
Pääomavastike (sis. korko & lyhennys)
980,12 €
i Kuukausittainen pääomavastike, kun taloyhtiölainasta maksetaan lyhennys ja korot
Pääomavastike (korko)
370,22 €
i Kuukausittainen pääomavastike silloin, kun taloyhtiölainasta maksetaan vain korkoja
Kaikki vastikkeet yhteensä
1 136,83 €
Lyhennyksen arvioitu alkaminen
2024-05
i Tämän jälkeen maksat pääomavastiketta, joka sisältää koron & lyhennyksen
Ennakkovesimaksu/hlö
25,00 €
Kaapeli-TV-/Laajakaistamaksu
1,00 €
 
 
Kuukausittaiset vastikkeet ovat taloussuunnitelman mukaisia arvioita kohteen hallinnonluovutuskokoukseen asti. Sen jälkeen vastikkeet ovat yhtiökokouksen päätöksen mukaisia.
 
 
Taloyhtiölainasta on vastuussa jokainen osakas. Jos lainaa koskevia pääomavastikkeita ei saada joidenkin asuntojen osalta muutoin perittyä, maksuvelvollisuus voi langeta viime kädessä muille osakkaille.

Kaikki kuvat

Kiinnostuitko?

Ota yhteyttä!

Asuntomyynti Jyväskylä

Puhelin: +358 400 588 191
Sähköposti: asuntomyynti@peab.fi

Evästeet

Sivusto sisältää evästeitä.

Evästeet ovat pieniä tekstitiedostoja, joita verkkosivusto tallentaa luvan kanssa kävijän tietokoneelle. Evästeitä käytetään normaalisti sivuston käyttäjäkokemuksen parantamiseen sekä sivuston mukauttamiseen käyttäjän toivomusten ja valintojen mukaan.

Sähköisen viestinnän tietosuojalain mukaan kaikkien verkkosivustoilla vierailevien käyttäjien pitää saada tietoa siitä, että verkkosivusto käyttää evästeitä sekä evästeiden käytön tarkoituksesta. Käyttäjien pitää myös hyväksyä evästeiden käyttö.

Käytämme sivustollamme evästeitä.

Käytämme sivustollamme evästeitä, jotta sivusto toimisi parhaalla mahdollisella tavalla sinulle sen vierailijana. On olemassa kolmen tyyppisiä evästeitä. Kaikkia evästeitä käytetään sivustollamme.

  • Pysyvät evästeet:

Tallennetaan tietokoneellesi tietyksi ajaksi.  Tätä evästettä käytetään esimerkiksi sivuston käyttäjäkokemuksen parantamiseksi.

  • Istuntoeväste:

Tallennetaan tietokoneellesi siksi aikaa kun vierailet sivustollamme. Istuntoevästeet poistuvat kun suljet internetselaimen.

  • Tilastoevästeet

Nämä evästeet keräävät tietoa montako vierailijaa sivustollamme on. Emme kerää henkilötietoja.

Evästeistä kieltäytyminen

Mikäli et halua hyväksyä evästeitä, voit asettaa tietokoneesi automaattisesti kieltäytymään evästeistä tai niin että saat ilmoituksen jos sivustolla käytetään evästeitä. Internetselaimen kautta voi myös poistaa aiemmin tallennettuja evästeitä. Ohjeet tähän löytyy selaimesta. Mikäli et hyväksy evästeiden käyttöä, saattaa osa sivustosta toimia huonosti.

Lue evästeselosteemme.

Lue lisää evästeistä Viestintäviraston sivuilta.